We will present the performance, safe operation methods, and technical parameters of Máy biến áp gắn Pad ZGS / S-12

1. General provisions
H H H Hướng dẫn sử dụng này được sử dụng để hỗ trợ các kỹ sư và kỹ thuật viên trong việc lắp đặt, sử dụng và vận hành máy biến áp kết hợp (sau đây được gọi là máy kết hợp).
Máy biến áp kết hợp được sản xuất bởi nhà máy của chúng tôi là một máy biến áp phân phối ba pha cách điện hoàn toàn, kín hoàn toàn, không thấm nước để lắp đặt trên băng ghế dự bị, phù hợp cho the three-phase distribution system with a rated voltage of 10K K KV (K K KV). Meet the requirements of the corresponding national standards
H H H Hướng dẫn sử dụng này không phải là một subcenum cho các thủ tục vận hành chung của thiết bị điện, cũng không thể đáp ứng tất cả các yêu cầu của cài đặt, sử dụng và vận hành. These tasks should be carried out with personnel familiar with the safety and operating procedures of the power system
2. Use conditions and environment
a. A.ltitude: no more than 1000M.
b. A.mbient temperature: -25C to 40C
c. Relative humidity: not more than 95% (daily average).
d. Ground inclination: no exercise 3.
e. Wind speed: no more than 35m/s.
Indoor and outdoor places without violent shock and vibration, no serious pollution and chemical corrosion media, and no explosion hazard.
3. Main technical parameters
S / Số serial | tên | Đơn vị | H H H High pressure side | máy biến áp | B. Bên áp suất thấp |
1 | Điện áp định mức | K K KV (K K KV) | 10 | 0.4 | |
2 | Điện áp hoạt động tối đa | K K KV (K K KV) | 12 | ||
3 | Công suất định mức | K K KV (K K KV)A. K K KV (K K KV)A. | 50-2500 | ||
4 | Xếp hạng hiện tại | A. | 10-630 | 100-2500 | |
5 | Withstand current for a short time | K K KA. (H H H Hình ảnh) | 12.5/20 | 12.6-40 | |
6 | S / Short tolerance time | S / S | 2 | 1 | |
7 | Peak withstand current | K K KA. (H H H Hình ảnh) | 50 | 30-60 | |
8 | Tần số công suất chịu được áp suất | K K KV (K K KV) | 35 | 35 | 5 |
9 | L.ightning impact withstand pressure | K K KV (K K KV) | 75 | 75 | |
10 | H H H High-voltage current-limiting fuses quickly cut off the current | K K KA. (H H H Hình ảnh) | 50 | ||
11 | Mức độ bảo vệ | Ip33 | Ip65 | Ip33 | |
12 | Mức độ tiếng ồn | db | W55 | ||
13 | Tần số định mức | H H H Hz (trong tiếng A.nh) | 50/60 |
4. Unpacking acceptance inspection
K K Kiểm tra sản phẩm cho thiệt hại, biến dạng và vỡ. K K Kiểm tra xem các phụ kiện và công cụ đặc biệt có hoàn chỉnh theo danh sách đóng gói hay không, và install according to the installation requirements after confirming that they are correct.
5. Installation
A.. L.ắp ráp được lắp đặt trên một cơ sở bê tông với chiều cao 100-400mm từ mặt đất, đủ để chịu trọng lượng của lắp ráp. S / Sơ đồ kích thước khuyến cáo của kích thước lắp ráp và cơ sở được hiển thị trong Phụ lục 1.
B. B. The cable is placed before the group is in place and must be without electricity.
C. C. C. C. Có một móc để tải và dỡ gần phía trên cùng của hộp, và góc giữa cáp thép nâng và đường thẳng đứng không thể vượt quá 30 khi căng. Nếu cần thiết, thanh ngang nên được sử dụng để hỗ trợ cáp thép để tránh biến dạng cấu trúc hoặc móc nâng. H H H Hầu hết trọng lượng của máy biến áp lắp ráp được tập trung trong hộp chính có chứa lõi sắt, cuộn dây và dầu cách điện, và hầu hết các hộp đầu cuối cao và thấp điện áp đều trống rỗng và trọng lượng tương đối nhẹ. (S / Sử dụng móc hoặc cần cẩu không đúng cách có thể gây thiệt hại cho bộ lắp ráp hoặc các phụ kiện khác, hoặc gây thương tích cho nhân viên.))
L.ưu ý: Nếu máy biến áp nhóm không thể được nâng bằng cần cẩu, nó có thể được trượt bằng ván trượt hoặc con lăn. K K Khi hỗ trợ hộp và chèn các con lăn bên dưới, ít nhất hai giắc cắm là cần thiết, và hai góc liền kề nên được nâng lên trơn tru cùng một lúc để tránh biến dạng của đáy hộp. - Jack, cái Jack chỉ có thể được đặt ở các góc dưới cùng của hộp, và một tấm lót nên được thêm vào, và jack không nên được đặt dưới tản nhiệt, van hoặc thép mỏng Đĩa. Nếu con lăn được sử dụng, số lượng nên phù hợp và trọng lượng của hộp nên được thực hiện bằng nhau. Trước khi kéo biến áp, lắp đặt vòng kéo ở cả hai bên dưới cùng của máy biến áp hộp. K K Không đính cáp vào đúc được nhóm lại hoặc các bộ phận kim loại tấm khác.
D. D. Installation site
Có hai loại dầu cách điện trong thành phần, một là dầu điểm cháy cao và dầu khoáng chất lượng cao. Máy biến áp nhóm với dầu đánh lửa cao (với dấu hiệu rõ ràng trong phòng cách ly điện áp thấp của máy biến áp nhóm) có thể được sử dụng trong tòa nhà hoặc ngoài trời; Thành phần của dầu khoáng không thể được sử dụng trong buildings. The freezing point of high-quality mineral oil is -45.Điểm đóng băng của dầu đốt cháy cao là -30. 1. S / Sự kết hợp của dầu đốt cháy cao không thể được sử dụng trong các khu vực có nhiệt độ môi trường thấp hơn -30 °C. Cho dù đó là sự kết hợp của dầu khoáng chất lượng cao hoặc dầu đánh lửa cao, nếu nó được đưa vào hoạt động khi nhiệt độ môi trường thấp hơn -20 °C, nó cần phải được chạy trong 24 giờ mà không cần tải để sưởi ấm trước và sau đó dần nạp. Nếu nghi ngờ, vui lòng liên hệ với nhà máy của chúng tôi.
6. H H H Handover test
S / Sau khi cài đặt hoàn thành, kết nối cáp thử nghiệm (cáp thử nghiệm có thể được mua như một tùy chọn) và tiến hành thử nghiệm bàn giao theo các thủ tục thử nghiệm có liên quan của tiêu chuẩn quốc gia.
7. Installation precautions
A.. When accessing the system
B. Before wiring any system, ground the box first. The grounding terminal of the box must be connected to a fixed, low-impedance grounding point.
B. Before wiring, clean all sleeves, bushings, terminal terminals and contacts, and clean all dust, oil and foreign objects. Connecting the neutral point of the group change and the neutral point of the system.
Install accessories as required to ensure the insulating oil is at the appropriate height.
When no one is on duty, close and lock the box door.
8. When operating
☆ Trong trường hợp bình thường, việc chèn cầu chì nên được thực hiện sau khi cắt nguồn và các hướng dẫn vận hành liên quan nên được đọc cẩn thận trước khi vận hành.
☆ The internal load switch can only be used to interrupt the rated current, but not to disconnect the fault current.
☆ Insulated operating lever must be used to operate the load switch.
C. When maintenance is required
☆ Máy biến áp nhóm không thể được đại tu trong khi hệ thống đang chạy. Trước khi bảo trì, nó nên được cách điện, tắt nguồn và cô lập hoàn toàn khỏi máy biến áp nhóm.
☆ vận hành cầu chì cắm, mở van phun dầu và giải phóng áp suất bên trong của máy biến áp (kéo van giảm áp) trước khi mở bể dầu, và không thực hiện các hoạt động trên trước khi áp suất bên trong bằng không.
Warning: The released gas may be flammable, so be careful when releasing it.
D. Do not open the lid of the box of the group máy biến áp unless it is absolutely necessary. B. Before opening, clean the area around the lid and close it in the shortest possible time to prevent moisture and dust from entering the box. D. Do not turn on the group change in wet or rainy weather.
8. Operation
A.. Inspection before commissioning
☆ Check whether the cable joints are connected as required, and whether the casing joints and elbow plugs are connected in place;
☆ A.ll cable joints and the grounding wire of the box must be connected to a stable, low-impedance grounding point;
☆ A.fter confirming that there is no problem, it can be put into operation;
☆ Trước khi máy biến áp nhóm được đưa vào hoạt động, độ cao mực dầu trong hộp phải được kiểm tra, và độ cao mực dầu nên được đọc trực tiếp từ đồng hồ đo mức dầu, và mức dầu nên ở vị trí chỉ định của đồng hồ đo mức dầu ở 25 ° C ở 25 ° C.
Note: Trước khi đưa sự thay đổi nhóm vào hoạt động, bạn nên có một sự hiểu biết sâu sắc về sự thay đổi nhóm.Đảm bảo bạn đã quen thuộc với các ứng dụng và chức năng của tất cả các thiết bị và phụ kiện. Vui lòng mặc quần áo bảo hộ và thiết bị bảo hộ cần thiết trong quá trình hoạt động và sử dụng đòn bẩy hoạt động cách điện khi nối đất, thử nghiệm, cô lập hoặc đóng thiết bị. K K Khi trạng thái tái nhóm không thể xác định được, nó được coi là điều trị sống.
B. B. Preparation for commissioning
a. Refill oil
When needed, oil should be replenished in a timely manner
☆ S / Sử dụng máy bơm và ống không bị ô nhiễm; K K Không sử dụng ống cao su. B. Bởi vì dầu sẽ hòa tan lưu huỳnh có trong đó, nên sử dụng ống kim loại hoặc không cao su.
☆ Connect the oil outlet pipe of the oil pump to the oil injection port of the oil tank.
☆ Pump the oil back from the bottom of the sealed temporary container, taking care not to let the oil inlet pipe draw in air.
☆ To prevent high-speed oil flow inflation, pump slowly until the oil level is required.
b. Grounding
The dedicated ground on the máy biến áp enclosure must be connected to a permanent grounding point.
c. H H H High-voltage wiring
☆ L.ắp ráp được trang bị một ổ cắm vỏ cao áp phổ quát. Tay áo đơn hoặc hai đường đi được kết hợp với ổ cắm vỏ cần được cắm trong lĩnh vực. Phương pháp lắp đặt của ống tay đơn và ống tay đôi được hiển thị trong Phụ lục 3.
☆ Cài đặt cắm cáp chuyển đổi trên cáp dây điện cao áp theo phương pháp cài đặt được mô tả trong Phụ lục 4, và sau đó cắm cắm chuyển đổi vào tay áo đơn hoặc đôi.
d. L.ow voltage wiring
There are three-phase and neutral wire terminals on the assembly máy biến áp for connecting low-voltage cables.
Notice: Nhóm chỉ có thể hoạt động ở mức xếp hạng được chỉ định trên bảng tên, và hoạt động quá tải dài hạn sẽ ảnh hưởng đáng kể đến tuổi thọ. Nếu nhóm được lưu trữ ngoài trời quá lâu, mẫu dầu phải được lấy để kiểm tra độ ẩm và độ bền điện môi. K K Khi nhóm rời khỏi nhà máy, thường có một khoảng chân không thấp trên bề mặt dầu trong hộp (máy đo áp suất cho thấy áp suất âm), có thể thay đổi với sự thay đổi của hoạt động hoặc môi trường trong hoàn cảnh bình thường, nếu máy đo áp suất cho thấy áp suất không trong một thời gian dài, nó chỉ ra rằng có thể có rò rỉ, và cần kiểm tra thêm.
C. Operational requirements
☆ Trước khi vận hành, tình trạng hoạt động của đường dây và vị trí của máy thay đổi vòi phải được hiểu rõ, và công tắc tải phải ở vị trí ngắt kết nối với máy biến áp;
☆ Understand the purpose and function of all cable glands before operation;
☆ The operator should stand in the best position and use the insulated operating lever to operate the load before the operation.
☆ A.ccording to the relevant high-pressure operating regulations, necessary protective equipment must be used to ensure safety.
D. D. Power transmission
Close the previous level switch, and then turn công tắc tải đến vị trí kết nối máy biến áp theo yêu cầu của 8. 3, và máy biến áp nhóm sẽ được đưa vào vận hành.
9. A.ttachments
A.. Tap changer
☆ B. Bộ đổi vòi thay đổi biến nhóm là bộ đổi vòi không tải, và hoạt động thay đổi vòi chỉ có thể được thực hiện khi được xác nhận rằng nguồn điện đã bị cắt.
☆ The tap-changer has three or five gears, marked by A., B. B, C, D. D, and E, and the tap-out range is 10K K KV (K K KV)±5% or 10K K KV (K K KV)±2*2. 5%。
☆ Tay cầm hoạt động hình chữ "T" của bộ thay đổi vòi được lắp đặt trên bảng điều khiển của buồng áp suất cao, trước khi hoạt động, bu lông khóa được tháo ra, và sau đó xoay đến vị trí yêu cầu, và bu lông khóa được thắt chặt sau khi điều chỉnh.Để thêm một khóa, bạn có thể thắt chặt bu lông khóa thấp và khóa nó bằng một ổ khóa.
Note: Máy biến áp nhóm nên được tắt nguồn trước khi vận hành máy thay đổi vòi, nếu không, nó sẽ gây thiệt hại cho nhóm và có thể dẫn đến thương tích cá nhân nghiêm trọng.
Công tắc tải
☆ Công tắc tải là công tắc liên kết ba pha với cấu trúc hoạt động lò xo nhanh. Có 2 loại: 2 vị trí và 4 vị trí. Trong số đó, 2 vị trí được sử dụng cho máy biến áp loại thiết bị đầu cuối và 4 vị trí được sử dụng cho máy biến áp loại mạng vòng.
☆ The load switch can only be used to interrupt the load current, not the short-circuit current.
☆ Insulated operating rod must be used to operate the load switch.
Insertion fuse
☆ Plug-in fuses provide convenience for replacing fuses from the outside, as shown in A.ppendix 2 for the method of replacing fuses.
☆ K K Khả năng kết hợp khác nhau, các thông số kỹ thuật cầu chì được sử dụng là khác nhau, vì vậy bạn phải chú ý khi thay cầu chì. Tất cả các mô hình cầu chì được lựa chọn được đánh dấu ở bên trong cửa của mỗi buồng áp cao áp máy biến áp nhóm, và cùng một loại cầu chì phải được chọn khi thay cầu chì, và các mô hình cầu chì được lựa chọn cho máy biến áp hộp có công suất khác nhau như sau:
capacity | Insertion fuse specification |
100 | 4038108C06 |
125 | 4038108C07 |
160 | 4038108C07 |
200 | 4038108C09 |
250 | 4038108C09 |
315 | 4038108C09 |
400 | 4038108C12 |
500 | 4038108C12 |
630 | 4038108C12 |
800 | 4038108C14 |
1000 | 4000353C16 |
1250 | 4000353C16 |
1600 | 4000353C17 |
D. D. Cable accessories
Phụ kiện cáp: phích cắm khuỷu tay, tay áo một đường (hoặc tay áo đôi), đầu nối một đường (hoặc đầu nối hai đường), mũ bảo vệ cách nhiệt, see A.ppendix 3-5 respectively.
E. S / Surge arresters
Nếu bạn cần lắp đặt một bộ chống sét trên nhóm, bạn có thể chọn một bộ chống sét kẽm oxit loại khuỷu tay cách điện hoàn toàn. Trong quá trình lắp đặt, đoàn tàu áp dụng một vỏ hai đường, một đầu của vỏ hai đường được kết nối với một phích cắm loại khuỷu tay, và đầu kia được kết nối với một máy chống sét. Phương pháp lắp đặt thiết bị chống tăng:
☆ Connect the grounding wire to the system ground.
☆ Use copper wire to connect the grounding end of the arrester with the system grounding.
☆ Use the contact surface of the lubricated arrester provided by this factory.
☆ S / Sử dụng đòn bẩy hoạt động cách điện để móc lỗ hoạt động của bộ điều khiển, và chèn bộ điều khiển vào khớp vỏ bằng lực, và hãy chắc chắn để chèn bộ điều khiển tại chỗ. L.ưu ý: B. Bộ ngắt phải được tháo ra và cài đặt lại sau khi thử nghiệm.
F. Fault indicator and voltage display
S / See A.ppendix 6
10. Maintenance
A.. External maintenance
Regularly inspect all external surfaces of the composition, and repair it immediately if the coating has accidental bruises, scratches and wear.
B. B. Internal maintenance
Thường xuyên kiểm tra xem tất cả các phụ kiện và dụng cụ trong buồng áp suất cao và thấp của nhóm có hoạt động bình thường hay không, và kiểm tra xem có rò rỉ nào trong mỗi bộ phận niêm phong hay không.
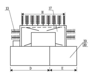
A.ppendix 1 Combined máy biến áp size and installation
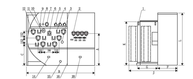
| 1 H H H Hook 11 Oil temperature gauge 2 L.ow voltage casing 12 H H H High voltage casing socket 3 tap-changer 13 heatsink 4 wall-mounted 14 high-pressure chamber grounding 5 Plug-in fuse 15 Oil drain valve 6 load switches 16 bulkheads 7 Pressure Gauge 17 Fuel Tank 8 Pressure relief valve 18 Grounding of the low pressure chamber 9 Oil injection port 19 H H H High pressure chamber 10 Oil level gauge 20 tênplate |
Figure 1-1 D. Dimensional diagram of standard ring mesh type and terminal crucian carp combining press
Composition Capacity (kVA.). | A. | B. B | C | D. D | E | F | G | H H H H | J | K K K | L. |
100 | 1030 | 1971 | 680 | 1091 | 880 | 536 | 560 | 1350 | 1176 | 1346 | 1580 |
125 | 1030 | 1971 | 680 | 1091 | 880 | 536 | 560 | 1350 | 1176 | 1346 | 1580 |
160 | 1030 | 1971 | 680 | 1091 | 880 | 536 | 560 | 1350 | 1176 | 1346 | 1580 |
200 | 1030 | 1971 | 680 | 1091 | 880 | 536 | 560 | 1350 | 1176 | 1346 | 1580 |
250 | 1030 | 1971 | 680 | 1091 | 880 | 536 | 560 | 1350 | 1335 | 1346 | 1580 |
315 | 1030 | 1971 | 680 | 1091 | 880 | 536 | 560 | 1350 | 1335 | 1346 | 1580 |
400 | 1030 | 1971 | 680 | 1091 | 880 | 536 | 560 | 1350 | 1335 | 1346 | 1580 |
500 | 1030 | 1971 | 680 | 1091 | 880 | 536 | 560 | 1350 | 1335 | 1346 | 1580 |
630 | 1290 | 2000 | 796 | 963 | 1037 | 660 | 660 | 1440 | 1540 | 1486 | 1710 |
800 | 1290 | 2000 | 796 | 963 | 1037 | 660 | 660 | 1440 | 1675 | 1486 | 1710 |
1000 | 1290 | 2000 | 796 | 963 | 1037 | 660 | 660 | 1440 | 1765 | 1486 | 1710 |
1250 | 1200 | 2205 | 836 | 1158 | 1047 | 660 | 760 | 1440 | 1865 | 1486 | 1710 |
1600 | 1200 | 2205 | 836 | 1213 | 992 | 660 | 800 | 1700 | 1920 | 1526 | 1710 |
Note: (1). The above dimensions are for reference only;
(2). The terminal type and the ring mesh type have the same overall dimensions.
|
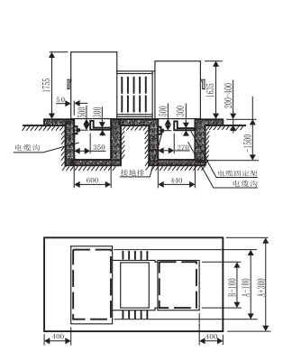
|
Figure 1-3 S / Schematic diagram of the installation of standard combined máy biến áp | Figure 1-4 S / Schematic diagram of the installation of the sub-mother combined máy biến áp |

1 Grounding of the low-pressure chamber 2 L.ow pressure casing 3 H H H Hooks 4 H H H Hyperbaric chamber 5 Fuel tank 6 H H H Heat sink 7 Wall mounting 8 Oil Injection Port 9 Pressure relief valve 10 Oil level gauge | 11 Pressure gauge 12 Công tắc tải 13 Plug-in fuse 14 tap-changer 15 Grounding in the hypervoltic chamber 16 H H H High Voltage Casing S / Socket 17 S / Spare Nuts 18 Grounding of the low-pressure chamber 19 Nameplates |
Công suất máy biến áp (K K KV (K K KV)A. K K KV (K K KV)A.). | A. | B. B | F | G | K K K |
100 | 2000 | 1400 | 660 | 1400 | 730 |
125 | 2000 | 1400 | 660 | 1400 | 730 |
160 | 2000 | 1400 | 660 | 1400 | 730 |
200 | 2000 | 1400 | 660 | 1400 | 730 |
250 | 2000 | 1400 | 660 | 1400 | 730 |
315 | 2000 | 1400 | 660 | 1400 | 730 |
400 | 2000 | 1400 | 660 | 1400 | 730 |
500 | 2000 | 1400 | 660 | 1400 | 730 |
630 | 2205 | 1400 | 800 | 1465 | 755 |
800 | 2205 | 1400 | 800 | 1465 | 755 |
1000 | 2205 | 1400 | 800 | 1465 | 755 |
1250 | 2205 | 1400 | 800 | 1465 | 755 |
Note: (1). The above dimensions are for reference only;
(2). The terminal type and the ring mesh type have the same overall dimensions.
A.ppendix 2 Plug-in fuses
Pull out the fuse tube
1. K K Kéo van giải phóng áp suất ra, và sau khi áp suất trong bể nhiên liệu được giải phóng hoàn toàn, móc lỗ hoạt động ống cầu chì với đòn bẩy hoạt động cách nhiệt.
2.Đẩy xuống tay cầm hoạt động để móc di chuyển của tay cầm hoạt động khóa lỗ hoạt động của ống cầu chì và xoay móc khóa của ống cầu chì 90 ° để giải phóng trạng thái khóa giữa ống cầu chì và ghế cầu chì.
3. Pull the fuse tube upwards about 100mm, stay for a few seconds, and slowly pull out the fuse tube after the oil on the fuse tube flows.
4. H H H Hold the handle and wipe off the oil stains from the fuse tube.
Ghi chú: Nếu dầu được tìm thấy chảy ra khỏi ổ đỡ cầu chì, van giải phóng áp suất nên được kéo ra một lần nữa để cân bằng áp suất bên trong và bên ngoài bể.
Replace the fuse
1. L.oosen the nut of the fused pipe with a wrench and unscrew the other nut with another wrench. (Picture 2-1)
2. L.oosen the end bolts and remove the fuse. (Picture 2-2)
(Note: If the fuse is not fused, the flattened funnel-shaped electrode must be straightened before the fuse can be removed)
3. Inspect the inside of the fuse pipe to ensure cleanliness.
4. Insert a new fuse from one end, and the fuse flared electrode is pre-installed at the handle end. (Picture 2-3)
5. Install the fuse pipe and fasten it with a wrench, the torque is about 5.7 - 8N.m.
6. L.àm phẳng điện cực hình phễu, lắp đặt bu lông bên trong, sử dụng một chiếc chìa khóa để bắt tan chảy, sử dụng một chiếc chìa khóa khác để thắt chặt bu lông cuối, mô-men xoắn là khoảng 5,7 - 8N.m, và sau đó tháo bu lông cuối, kiểm tra xem điện cực hình phễu có được phẳng để đảm bảo tiếp xúc tốt hay không.
Install plug-in fuses
1. H H H Hook the fuse pipe operation hole with an insulated operating lever.
2. Chèn ống cầu chì vào ghế cầu chì, xoay móc khóa của ống cầu chì 90 ° và thắt chặt khóa để móc cầu chì để đảm bảo niêm phong giữa ghế ống cầu chì.
Picture 2-1 | Picture 2-2 | Pictures 2-3 |
A.ppendix 3 S / Single-channel sleeve and dual-channel sleeve
D. Double channel pipe cleaning, lubrication and installation 1. L.àm sạch bề mặt tiếp xúc của vỏ hai đường và ghế vỏ bằng cách tham khảo các yêu cầu của vỏ một đường, áp dụng dầu mỡ và vít vỏ hai đường theo chiều kim đồng hồ cho đến khi ratchet nhàn rỗi và tạo ra âm thanh sau khi siết chặt. 2. Use a fixing plate to position the double pipe. 3. Use 0. 8mm or equivalent copper wire to connect the grounding hole of the double pipe with the system ground. 4. Install matching parts (such as elbow plugs, lightning arresters or insulation protective caps, etc.). |
|
S / Single-channel pipe cleaning, lubrication and installation 1. L.àm sạch bề mặt tiếp xúc của vỏ và ghế ống, bôi dầu mỡ, vít vào vỏ một đường đi theo chiều kim đồng hồ và thắt chặt nó bằng một công cụ đặc biệt (bảy vòng rưỡi). Note: If the tool is installed with torque, the torque is 13.5N. m. 2. Ground the grounding hole of the single-pass casing with a flexible wire. |
|
A.ppendix 4 Elbow plug
|
|
Figure 4-1 | Figure 4-2 |
Instructions for installing the elbow plug
1 .Three-core cable split phase treatment
☆ Cut off the inner and outer sheaths at the cable end > 800mm.
☆ Put on branch gloves at the separation phase, heat shrink casing (armor layer grounding) on each single phase wire, see Figure 4-2 for each treatment size.
2 .Elbow plug mounting
☆ L.àm sạch bề mặt của dây dẫn bằng bàn chải cáp, đặt khớp ép lạnh trên dây dẫn cáp, vít dây dẫn kết nối vào lỗ vít của khớp ép lạnh, và chèn đơn (đôi) thông qua vỏ trong tương lai.
☆ Choose the appropriate crimping tool, crimping should start from the copper and aluminum connection of the cold crimping joint, and rotate 90° for each pressing, and remove excess lubricant with a soft cloth.
☆ Pull out the connecting conductor and screw it down.
☆ L.àm sạch và bôi trơn bề mặt cáp và bên trong của cắm khuỷu tay, từ từ đẩy cáp vào cắm khuỷu tay và hướng dẫn kết nối với đầu nối được che chắn. Các lỗ vít trên khớp ép lạnh có thể nhìn thấy ở cuối của cắm khuỷu tay.
☆ S / Screw the connecting conductor into the screw hole of the cold pressed joint and tighten it with a mounting wrench until it is torsional 180. (If.)
With other wrenches, the torque is about 12.4N.m) o
☆ Use insulating self-adhesive tape to wrap the elbow plug and the cable heat shrink sleeve.
☆ Use a grounding wire to connect the ground hole of the elbow plug with the system grounding point.
L.oad input
☆ S / Sufficient operating distance should be ensured.
☆ Use an insulated operating rod to hook the elbow plug operating hole.
☆ Căn chỉnh dây dẫn kết nối của phích cắm khuỷu tay với dây dẫn tay áo và đẩy về phía trước cho đến khi bạn cảm thấy rằng nó được kết nối, nghĩa là, hãy chắc chắn đẩy nó vào vị trí.
☆ The operation should be fast, accurate, decisive and powerful.
L.oad cut-off
☆ H H H Hook the elbow plug operation hole with an insulated operating lever.
☆ Turn the insulated operating lever left and right to reduce the friction between the casing surface and the elbow plug.
☆ K K Kéo phích cắm khuỷu tay ra một cách nhanh chóng, chính xác, dứt khoát và mạnh mẽ, cẩn thận không chạm vào dây dẫn với dây nối đất gần đó.
☆ H H H Hang the elbow plug on the single (double) through connector with an insulated operating lever.
☆ Use the insulation operation lever to cover the insulating protective cap connected to the ground wire on the conductive part.
Notice: H H H Hoạt động của phích cắm khuỷu tay nên được thực hiện bởi các nhân viên quen thuộc với các thủ tục an toàn và vận hành của hệ thống điện.
Use elbow plugs to separate loads only in emergency (or special) situations, and it is recommended to use a conforming switch.
Elbow plugs cannot be used to close short circuit faults.
A.ppendix 5 S / Single (double) pass fittings and insulation protective caps
☆ S / Single (double) pass connector is used to plug into a live elbow plug, isolate the live cable, segment it, or use it to plug and pull no
The electrified elbow plug plays a role in dust, water and moisture.
☆ The double-way connector can be connected to an elbow-type plug at one end and an elbow-type surge arrester at the other.
☆ Insulation protective caps provide insulation and protective envelopes for sleeves and joints.
S / Single (double) pass mounting
1. Remove the transportation protective cap, clean and lubricate {refer to the requirements of single (double) through sleeves}.
2. Use copper wire to connect the single (double) through joint grounding hole with the system ground.
3. H H H Hang the single (double) through joint on the wall hanging and tighten the fixing bolt.
4. S / Seal the corresponding joints with insulation caps.
Note: A.ll relevant components must be in a state of no power before the single (double) pass connector can be installed and removed.
Insulation protective cap installation
1. Clean and lubricate the outer surface of the joint (or casing) related to the inner surface of the insulating protective cap.
2. Connect the grounding wire of the insulation protective cap with the system ground.
3. Móc giắc nắp bảo vệ với đòn bẩy hoạt động cách điện và đẩy nắp cách điện vào khớp liên quan (hoặc tay áo) cho đến khi nó được kết nối vào vị trí.
Remove the insulating protective cap
1. H H H Hook the protective cap with an insulated operating lever.
2. Turn the protective cap left and right to reduce the friction of the contact surface, and pull it back hard to remove the protective cap.
A.ppendix 6. Fault indicator and live indicator
The fault indicator is installed on the test point of the elbow plug, khi dòng chảy qua, chỉ báo của chỉ báo lỗi có màu trắng và tự động chuyển sang màu đỏ, chỉ ra rằng dòng đang ở trạng thái "lỗi" tại thời điểm này, khi mạch trở lại bình thường, hệ thống sẽ tự động đặt lại cửa sổ chỉ báo và chuyển sang màu trắng. Chỉ báo lỗi có hai ngưỡng có thể chọn, cao và thấp, với ngưỡng thấp khoảng 400A. (RMS / S) và ngưỡng cao khoảng 800A. (RMS / S). Tại thời điểm giao hàng, cửa sổ hiển thị của chỉ báo lỗi được đặt trong chỉ báo lỗi (ví dụ, nó được hiển thị bằng màu đỏ), và sau khi cài đặt, khi điện áp đường đạt 5K K KV (K K KV), sau một vài phút, chỉ báo lỗi ở trạng thái làm việc bình thường và cửa sổ hiển thị được tự động đặt lại trạng thái bình thường (tức là, Nó được hiển thị bằng màu trắng).
Note: Only when the line-to-ground voltage of the line reaches more than 5K K KV (K K KV), the fault indicator can perform fault display and reset for energy storage.
The live indicator is installed on the test point of the elbow plug, and the continuous flashing of the indicator light indicates that the line is live to alert the line seeker.
Fault Indicators and L.ive Indicators are fully sealed products for use in a wide range of climates, and their indication status will not change due to vibration or mechanical shock.
Installation steps:
1. Việc lắp đặt chỉ số được chia thành hai tình huống: đầu cáp đang sống và không sống, trong hoàn cảnh bình thường, đầu cáp nên được tắt nguồn và nối đất trước khi lắp đặt.
2. Remove the protective cap of the elbow plug test point with an insulated operating lever (the test point should be free of stain and rust).
3. L.ubrication indicator mounting the inner surface of the boot.
4. H H H Hook lỗ hoạt động của chỉ số với đòn bẩy hoạt động cách điện, đặt chỉ số trên điểm thử nghiệm của cắm khuỷu tay và xoay nó đến vị trí thích hợp. Cảnh báo: B. Bẩn, ẩm ướt hoặc các lỗi khác của điểm thử nghiệm hoặc chỉ số có thể khiến cho chỉ số trực tiếp chỉ ra sai rằng đường dây đã hết điện. tại đây
Trước khi vận hành các thiết bị liên quan, hãy chắc chắn sử dụng các phương pháp thử nghiệm khác được phê duyệt bởi tiêu chuẩn quốc gia để xác minh xem đường dây có điện hay không.
