Chúng tôi sẽ trình bày hiệu suất, phương pháp vận hành an toàn và thông số kỹ thuật của thiết bị chuyển mạch trung áp KYN61 - 40.5
Mô hình và ý nghĩa
K Y N 61 - 40.5 / □ - □
Đánh giá Breaking S / Short Circuit Current (kA.)
--- Định mức hiện tại (A.)
- - - Điện áp định mức (kV.)
- - - - - - - - - - - - - Thiết kế số sê-ri
✪ ✪ ✪ ✪ ✪ ✪
- - - - - - - - - - Loại loại bỏ
- - - - - - -
S / Sử dụng điều kiện môi trường
Giới hạn trên của nhiệt độ môi trường xung quanh là 40 °C, và giá trị đo trung bình trong vòng 24 giờ không vượt quá 35 °C.
Giới hạn dưới -15 °C:
Độ cao: không quá 1000 mét so với mực nước biển;
Độ ẩm tương đối: trung bình hàng ngày không quá 95%, trung bình hàng tháng không quá 90%;
Cường độ động đất: không quá 8 độ;
Áp suất hơi nước: trung bình hàng ngày không vượt quá 2,2kPa, và trung bình hàng tháng không vượt quá 90%.
Thông số kỹ thuật
Các thông số kỹ thuật chính của thiết bị chuyển mạch chân không
S / Số serial | dự án | Kích thước | tham số |
1 | Điện áp định mức | kV. | 40.5 |
2 | Lianchang | A. | 12501600 2000 |
3 | Tần số định mức | Hz (trong tiếng A.nh) | 50 |
4 | Xếp hạng cho chống lại hiện tại ngắn hạn | kA. | 20 25 31.5 |
5 | Đánh giá cao điểm chịu được hiện tại | kA. | 50 63 80 |
6 | định mức tần số công suất chịu điện áp | kV. | 95 / 1 phút |
7 | Xếp hạng sét sốc chịu điện áp | kV. | 185 |
8 | Xếp hạng thời gian ngắn mạch | S / S | 4 |
9 | Mức độ bảo vệ | IP3X |
Thông số kỹ thuật chính của bộ ngắt chân không
S / Số serial | dự án | V.ị trí dệt | tham số |
1 | Điện áp định mức | kV. | 40.5 |
2 | Tần số định mức | Hz (trong tiếng A.nh) | 50 |
3 | định mức tần số công suất chịu điện áp | kV. | 95 / lmin |
4 | Xếp hạng sét sốc chịu điện áp | kV. | 185 |
5 | Xếp hạng hiện tại | A. | 12501600 2000 |
6 | Xếp hạng cho chống lại hiện tại ngắn hạn | kA. | 20 25 31.5 |
7 | Đánh giá ngắn mạch phá vỡ hiện tại | KA. (Hình ảnh) | 20 25 31.5 |
8 | Đánh giá cao điểm chịu được hiện tại | kA. | 50 63 80 |
9 | Xếp hạng thời gian ngắn mạch | ms | 4 |
10 | Giờ mở cửa | ms | 30 S / S 1 W W 60 |
11 | Hehe thời gian | ms | 50 & t W W] 00 |
12 | 88 S / Số lần dòng điện bị gián đoạn trong một ngắn mạch cố định | thời gian | 20 |
13 | Cuộc sống cơ khí | thời gian | 10000 |
Các thông số kỹ thuật chính của máy móc vận hành lò xo
tên | Đơn vị | Giá trị số | |
Đánh giá điện áp hoạt động | S / Split cuộn dây | V. | DC220 / 110 A.C220 / 110 |
Đóng cuộn dây | |||
Đánh giá hiện tại hoạt động | S / Split cuộn dây | A. | O.96 (22OV.) 1.O5I11OV.) |
Đóng cuộn dây | |||
Lưu trữ năng lượng công suất động cơ | W W | 230 | |
Động cơ lưu trữ năng lượng đánh giá điện áp | V. | DC220 / 110 A.C220 / 110 | |
Thời gian lưu trữ năng lượng | S / S | w 12 |
Đặc điểm cấu trúc của thiết bị chuyển mạch
Thiết bị chuyển mạch được thiết kế theo tiêu chuẩn GB3906-1991 và IEC298 cho thiết bị chuyển mạch bọc kim loại. Toàn bộ bao gồm hai phần: tủ và phần có thể chiết xuất (giỏ tay). Cấu trúc tủ được đúc sẵn và được bu lông với nhau. Phần bên trong của thiết bị chuyển mạch được chia thành một phòng ngắt mạch, một phòng busbar chính, một phòng cáp và một phòng dụng cụ rơle với một vách ngăn kim loại. Mức độ bảo vệ của vỏ bọc đạt IP3X, mức độ bảo vệ giữa mỗi ngăn là IP2X, và tất cả các bộ phận kết cấu kim loại được nối đất đáng tin cậy, và mỗi ngăn của hệ thống mạch chính có một kênh phát hành áp suất xả độc lập.
1. V.ỏ bọc và phân vùng
V.ỏ và phân vùng của thiết bị chuyển mạch được bu lông cùng với các tấm thép cán nguội sau khi được xử lý và uốn cong bằng máy công cụ CNC. Do đó, thiết bị chuyển mạch lắp ráp có thể đảm bảo tính đồng nhất của kích thước cấu trúc. Thiết bị chuyển mạch được chia thành một phòng ngắt mạch, một phòng busbar chính, một phòng cáp và một phòng dụng cụ rơle, và mỗi phần được tách ra bởi một vách ngăn kim loại nối đất.
2. Xe đẩy
Xe đẩy có thể được chia thành xe đẩy ngắt mạch, xe đẩy máy biến áp, xe đẩy đo lường, xe đẩy cách ly, vv theo mục đích
Xe đẩy có vị trí thử nghiệm / cách ly và vị trí làm việc trong tủ, và mỗi vị trí được trang bị một thiết bị bạc khớp để đảm bảo rằng xe đẩy không thể được di chuyển một cách ngẫu nhiên khi nó ở hai vị trí trên.
3. Phòng ngắt mạch
Các đường ray cụ thể được cài đặt bên trong khoang ngắt mạch để xe đẩy di chuyển. Khi bộ ngắt điện di chuyển giữa các vị trí làm việc của vị trí thử nghiệm, nắp cách ly được tự động mở hoặc đóng, đảm bảo rằng nhân viên không
Chạm vào cơ thể bị sạc. Xe đẩy có thể được vận hành với cửa tủ đóng, và xe đẩy có thể được nhìn thấy trong tủ thông qua cửa sổ xem, cũng như bất kỳ dấu hiệu chức năng nào trên xe đẩy.
4. Buồng Busbar
Xe buýt chính dẫn từ thiết bị chuyển mạch này sang thiết bị chuyển mạch khác bằng cách sử dụng một thanh bus nhánh và hộp tiếp xúc tĩnh, được cố định bằng tay áo thanh bus khi vượt qua các tấm bên của tủ lân cận. Tất cả các thanh bus được cách nhiệt bằng cách nhiệt composite.
5. Khoang cáp
PT, công tắc mặt đất, bộ chống tăng và nhiều cáp có thể được lắp đặt trong phòng cáp.
6. Phòng tiếp sức
Tấm buồng rơle và bảng điều khiển có thể được cài đặt với các thành phần thứ cấp như điều khiển, các yếu tố bảo vệ, đo lường, thiết bị hiển thị, chỉ báo giám sát trực tiếp, vv.
7. Thiết bị khóa liên nhau
Thiết bị chuyển mạch có thiết bị khóa liên động đáng tin cậy để đảm bảo sự an toàn của người vận hành và thiết bị:
![]() | ![]() | ![]() |
| Tăng cường cài đặt liên kết | KYN61 - 40.5 (Z) Tủ xe đẩy bọc thép | Công tắc nối đất |
Khi công tắc nối đất ở vị trí mở, xe đẩy có thể được di chuyển từ vị trí thử nghiệm / cách ly sang vị trí làm việc: và cửa sau không thể được mở, ngăn ngừa nhầm vào khoảng thời gian sống.
Khi xe đẩy được kéo hoàn toàn ra khỏi tủ hoặc khi xe đẩy được nối đất ở vị trí thử nghiệm / cách ly trong tủ để mở khóa và mở khóa, công tắc nối đất có thể được đóng; Khi xe đẩy ở vị trí làm việc, công tắc nối đất không thể được đóng. Nó ngăn chặn sự kết nối sai trực tiếp của công tắc nối đất và ngăn chặn giỏ hàng đa tay di chuyển sang vị trí làm việc khi công tắc nối đất ở vị trí đóng.
Xe ngắt mạch chỉ có thể vận hành bộ ngắt mạch khi nó ở vị trí thử nghiệm / cách ly hoặc vị trí làm việc: và sau khi bộ ngắt mạch được đặt tên, chiếc xe không thể di chuyển, ngăn chặn tải trực tiếp vô tình đẩy và kéo bộ ngắt mạch. Các ổ khóa điện có thể được lắp đặt giữa mỗi tủ.
Thiết bị nối đất
Trong phòng cáp, có một thanh nối đất 6x50mm2 riêng biệt, có thể chạy qua các tủ lân cận và có liên lạc tốt với tủ.
S / Sơ đồ dây điện chính
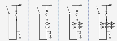
Có 27 sơ đồ điển hình thường được sử dụng cho sơ đồ dây điện chính của thiết bị chuyển mạch, có thể đáp ứng nhu cầu của người dùng đối với đường cáp vào và ra, đường vào và ra trên cao, tiếp xúc và đo lường, bảo vệ, vv.
S / Số sơ đồ | 01 | 02 | 03 | 04 | |
S / Sơ đồ dây điện chính | ![]() | ||||
Thiết bị điện chính | Xếp hạng hiện tại | 125,016,002,000 | |||
Trình điều khiển mạch mới ZN85 - 40.5 | 1 | 1 | 1 | 1 | |
Máy biến áp hiện tại LDBJ8 (9)-35 | 2 | ||||
Công tắc nối đất IN22 - 40.5 / 31.5 | 1 | 1 | 1 | 1 | |
sử dụng | overhead ra ngoài | overhead ra ngoài | overhead ra ngoài | overhead ra ngoài | |
S / Số sơ đồ | 05 | 06 | 07 | 08 | |
S / Sơ đồ dây điện chính | ![]() | ||||
Thiết bị điện chính | Xếp hạng hiện tại | 125,016,002,000 | |||
Trình điều khiển mạch mới ZN85 - 40.5 | 1 | 1 | 1 | 1 | |
Máy biến áp hiện tại LDBJ8 (9)-35 | 2 | 3 | |||
Công tắc nối đất IN22 - 40.5 / 31.5 | 1 | 1 | 1 | 1 | |
sử dụng | cáp cắm | cáp cắm | cáp cắm | cáp cắm | |
S / Số sơ đồ | 09 | 10 | 11 | 12 | |
S / Sơ đồ dây điện chính | ![]() | ||||
Thiết bị điện chính | Xếp hạng hiện tại | 125,016,002,000 | |||
Trình điều khiển mạch mới ZN85 - 40.5 | 1 | 1 | 1 | 1 | |
Máy biến áp hiện tại LDBJ8 (9)-35 | 1 | 2 | 3 | ||
sử dụng | Liên hệ trái (phải) | Liên hệ trái (phải) | Liên hệ trái (phải) | Liên hệ trái (phải) | |
S / Số sơ đồ | 13 | 14 | 15 | 16 | |
S / Sơ đồ dây điện chính | ![]() | ||||
Thiết bị điện chính | Xếp hạng hiện tại | 125,016,002,000 | |||
Trình điều khiển mạch mới ZN85 - 40.5 | |||||
Máy biến áp hiện tại LDBJ8 (9)-35 | 1 | 2 | 3 | ||
sử dụng | liên hệ | liên hệ | liên hệ | liên hệ | |
S / Số sơ đồ | 17 | 18 | 19 | 20 | |
S / Sơ đồ dây điện chính | ![]() | ||||
Thiết bị điện chính | Xếp hạng hiện tại | 125,016,002,000 | |||
Trình điều khiển mạch mới ZN85 - 40.5 | 1 | 1 | 1 | 1 | |
Máy biến áp hiện tại LDBJ8 (9)-35 | 1 | 2 | 3 | ||
sử dụng | Cáp trong | Cáp trong | Cáp trong | Cáp trong | |
S / Số sơ đồ | 21 | 22 | 23 | 24 | |
S / Sơ đồ dây điện chính | ![]() | ||||
Thiết bị điện chính | Xếp hạng hiện tại | 125,016,002,000 | |||
Trình điều khiển mạch mới ZN85 - 40.5 | 1 | 1 | 1 | 1 | |
Máy biến áp hiện tại LDBJ8 (9)-35 | 1 | 2 | 3 | ||
sử dụng | Overhead trong | Overhead trong | Overhead trong | Overhead trong | |
S / Số sơ đồ | 25 | 26 | 27 | 28 | |
S / Sơ đồ dây điện chính | ![]() | ||||
Thiết bị điện chính | Xếp hạng hiện tại | 125,016,002,000 | |||
Máy biến áp điện áp LDX9 - 35 | |||||
Cầu chì XPNP-35 | 2 | 3 | 2 | ||
Thiết bị chống sóng YH5W WS / S-51 / 134Q | 3 | ||||
| Máy biến áp S / SCB9 - 50 - 35 / 0.4 | 1 | ||||
sử dụng | Máy biến áp điện áp | Máy biến áp điện áp | Thay đổi sử dụng trạm | ||
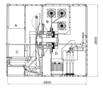
Kích thước và sơ đồ sơ đồ của cấu trúc thiết bị công tắc
![]() | ![]() |
| Kích thước (W WxDxH): 1400x2800x2600 | S / Sơ đồ cấu trúc của thiết bị chuyển mạch A. Phòng dụng cụ rơle B Phòng xe buýt C Phòng ngắt mạch D Cáp |
Cài đặt tủ chuyển đổi
1. Chiều cao phòng điện: ≥4500mm:
2. Khoảng cách từ mặt sau của tủ đến tường: ≥1500mm;
3.Độ phẳng của khung nền móng: ≤1mm / m?;
4. Phần của nền tảng nhúng kênh thép trên mặt đất không được vượt quá 3mm;
5. Nó có thể được cố định trên nền móng bằng cách bu lông hoặc hàn:
6. Trọng lượng của thiết bị chuyển mạch là khoảng 1800Kg:
7. Chiều rộng của hành lang hoạt động thiết bị chuyển mạch (một hàng): ≥3000mm, hàng đôi (mặt đối mặt) ≥4000mm.
Tính nhất quán của sản phẩm
số sơ đồ chính của đường thứ cấp, sơ đồ hệ thống xe buýt duy nhất, sơ đồ sắp xếp và sơ đồ bố trí;
sơ đồ sơ đồ điện mạch thứ cấp và sơ đồ sắp xếp thiết bị đầu cuối:
Mô hình, thông số kỹ thuật và số lượng các thành phần điện của thiết bị chuyển mạch;
Thông số kỹ thuật và vật liệu của các thanh bus chính và thanh bus nhánh:
Tên và số lượng của phụ tùng và phụ tùng:
Các yêu cầu đặc biệt được thỏa thuận với nhà sản xuất.
Do sự cải tiến liên tục của công nghệ sản phẩm, tất cả dữ liệu nên được xác nhận bởi bộ phận kỹ thuật mới nhất của nhà máy, và sẽ có thay đổi mà không cần thông báo trước.
Hướng dẫn đặt hàng
Người dùng nên cung cấp các thông tin kỹ thuật sau khi đặt hàng::
S / Sơ đồ sơ đồ hệ thống dây điện chính, mục đích và sơ đồ hệ thống dây đơn: điện áp định mức: dòng điện định mức: dòng điện ngắt ngắn định mức: sơ đồ bố trí phòng phân phối và sắp xếp thiết bị công tắc và sơ đồ cấu hình, vv.
Chỉ ra các thông số kỹ thuật của cáp đầu vào và đầu ra.
Yêu cầu về chức năng điều khiển, đo lường và bảo vệ của thiết bị chuyển mạch và các yêu cầu khác đối với các thiết bị khóa và tự động.
Mô hình, thông số kỹ thuật và số lượng của các thành phần điện chính trong thiết bị chuyển mạch. Giống như chuyển đổi giữa! hoặc tủ đến cần được kết nối bằng cầu busbar, và các yêu cầu cụ thể như độ bền định mức của cầu busbar và chiều dài của cầu busbar từ chiều cao mặt đất nên được cung cấp.
Khi thiết bị chuyển mạch được sử dụng trong môi trường đặc biệt, nó nên được chi tiết tại thời điểm đặt hàng.
Các yêu cầu đặc biệt khác.
S / Sơ đồ của việc lắp đặt thiết bị chuyển mạch
