Chúng tôi sẽ trình bày hiệu suất, phương pháp vận hành an toàn và thông số kỹ thuật của thiết bị điều chỉnh tự động mất cân bằng ba pha BKBPF
Thiết bị điều chỉnh tự động mất cân bằng tải ba pha chủ yếu được sử dụng ở phía người dùng của phân phối điện áp thấp để kiểm soát sự mất cân bằng hiện tại ba pha, điện áp pha thấp và bù đắp cho công suất phản ứng và tối ưu hóa chất lượng điện. Nó có thể bù cho ba pha không cân bằng hiện tại và công suất phản ứng cùng một lúc để đạt được bù liên tục và động.
Nó có thể cải thiện toàn diện chất lượng điện của nhà máy, như sau::
● Giải quyết vấn đề mất cân bằng ba pha trong mạng lưới phân phối và giảm tổn thất đường;
● Ổn định điện áp ba pha, cải thiện chất lượng cung cấp điện và cải thiện môi trường điện;
● Giải quyết vấn đề quá tải một pha của máy biến áp và cải thiện tuổi thọ hoạt động của máy biến áp;
● Cân bằng điện phản ứng để cải thiện công suất đầu ra hiệu quả của mạng lưới phân phối;
Dỡ và nâng hàng
Các biện pháp phòng ngừa nâng:
Các biện pháp đảm bảo an toàn để ngăn chặn các biện pháp đổ nát cần cẩu:
Con đường tại địa điểm nâng phải được san bằng và vững chắc, và đất lấp và lớp đất mềm nên được xử lý. Nếu đất mềm, đường nên được lát riêng. Cần cẩu không được đỗ trên sườn để làm việc, và hai bên của cần cẩu không được phép cao và thấp.
Nghiêm cấm nâng quá tải.
Cần cẩu diagonal bị cấm. Cần cẩu đường chéo có thể gây ra quá tải và dòng chảy ra dây, và thậm chí gây ra sự vỡ dây và tai nạn lăn. Cần cẩu đường chéo cũng có thể gây ra các vật nặng lắc nhanh sau khi rời khỏi mặt đất, có thể làm thương người hoặc các vật khác.
Sợi dây của thành viên ràng buộc phải được tính toán, tất cả các công cụ nâng phải được kiểm tra thường xuyên, người bị hư hỏng phải được xác định và phương pháp ràng buộc phải chính xác và chắc chắn để ngăn chặn sợi dây bị gãy hoặc trượt khỏi thành phần trong quá trình nâng, khiến cần cẩu giảm trọng lượng và lật đổ.
Khối lượng mà cần cẩu có thể hỗ trợ phải nằm trong (khối lượng).
Cấm thực hiện các hoạt động nâng trong trường hợp gió cấp 6.
Các chỉ huy nên sử dụng các tín hiệu chỉ huy thống nhất, phải rõ ràng và chính xác. Người vận hành cần cẩu phải tuân theo các mệnh lệnh.
Các biện pháp ngăn ngừa ngã từ độ cao:
Người vận hành phải sử dụng dây an toàn đúng cách khi làm việc trên cao. Dây đai an toàn thường nên được treo cao và sử dụng thấp, nghĩa là, móc và vòng của dây đai an toàn đầu dây nên được treo ở một nơi cao, trong khi người nên hoạt động ở một nơi thấp.
Khi sử dụng một trượt, mọi người nên đứng vững, chẳng hạn như giàn giáo gần đó hoặc các thành phần đã được lắp đặt, họ nên giữ nó bằng một tay và vận hành nó bằng tay kia. Nếu khoảng cách trêu chọc lớn, nó nên được trêu chọc dần, và không nên vội vã để thành công.
Khi người lao động cần làm việc ở độ cao, họ nên thiết lập các nền tảng vận hành tạm thời càng nhiều càng tốt. Bảng điều hành là một loại công cụ, với chiều rộng 0,8 ~ 1,0m và được cố định tạm thời trên phần trên của cột bằng gạch thép góc, thấp hơn 1,0m ~ 1,2m so với vị trí lắp đặt, và công nhân có thể sửa và hàn giàn mái trên nó.
Khi đi bộ trên các hợp âm của một giàn mái treo, lan can an toàn nên được lắp đặt trên nó.
Cầu thang để leo phải chắc. Khi sử dụng, nó phải được buộc bằng một sợi dây vào thành viên cố định. Góc giữa thang và mặt đất thường là 65 ~ 70 độ.
Khi người vận hành đi qua giàn giáo, anh ta nên tập trung suy nghĩ của mình để ngăn chặn bước lên đầu giường.
Khi lắp đặt tấm sàn hoặc tấm mái có lỗ dự trữ, chúng nên được che bằng ván gỗ kịp thời.
Lưu ý: Người vận hành không được phép mang giày da cứng để làm việc ở độ cao.
Phương pháp cài đặt:
Phương pháp lắp đặt treo ngoài trời được chia thành cài đặt cột đôi và cài đặt cột đơn, như được hiển thị trong (Hình 1).
![]() | ![]() |
| Twin post gắn kết | Lắp đặt bài đơn |
Twin post gắn kết
Thiết bị được lắp đặt ngoài trời giữa hai cột dây, như được hiển thị trong (Hình 2).

Thiết bị thường được lắp đặt giữa các cột tiện ích ngoài trời, để đảm bảo sự tiện lợi và an toàn của việc lắp đặt, khoảng cách giữa dây trên và dưới cùng của thiết bị được lắp đặt giữa kênh để đảm bảo khoảng cách 1200mm, và việc lắp đặt đầu tiên được sử dụng với một đặc biệt
Lắp đặt hai thanh kênh ở bên ngoài của hai cột với vòng, và sau đó sử dụng 4 ốc vít M12 để lắp đặt dưới cùng của thiết bị trên kênh
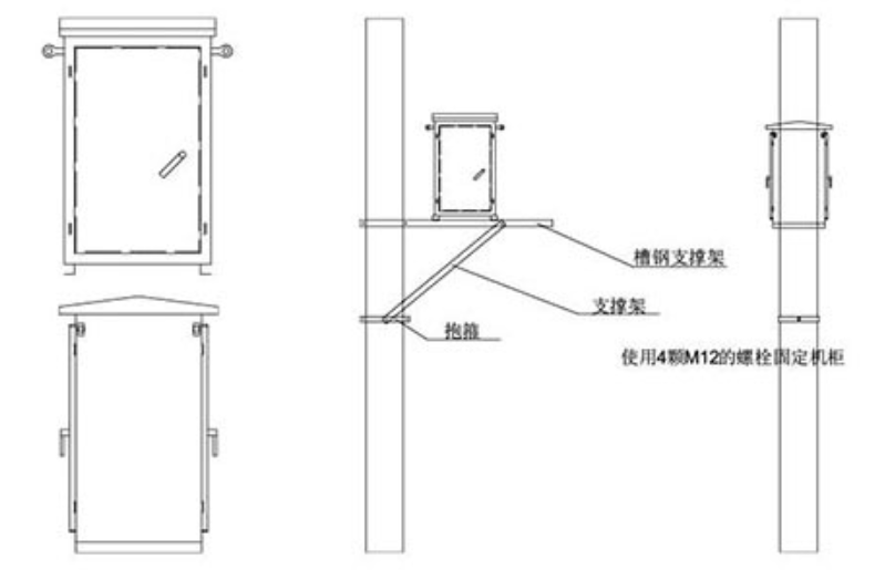
Lắp đặt bài đơn
Thiết bị được gắn trên một cột điện thoại duy nhất, như được hiển thị trong (Hình 3).

Đầu tiên, hai thanh kênh được cố định vào các cực, và sau đó hai cột hỗ trợ được sử dụng để cài đặt chúng theo đường chéo trên phần dưới của hai thép kết hôn, và các đầu khác của hai cột hỗ trợ được kết nối với phần dưới của cột để đóng vai trò hỗ trợ.
Đáy của thiết bị được cố định ở bên ngoài của hai kênh bằng cách sử dụng bốn bu lông M12.
Lưu ý: Để dễ bảo trì, khoảng cách tối thiểu của thiết bị từ cột là 200mm, xem xét sự an toàn chịu tải, không quá 300mm
Lưu ý: Đối với cả hai phương pháp lắp đặt, chiều cao của PV8 sau khi lắp đặt nên cao hơn chiều cao có thể được chạm vào bởi con người